2025 - Statter Harbor Improvements Phase III(D) Upland Improvements
Project Details
CBJ Contract #: DH25-023Contractor: Dawson Construction
Construction Cost: $2,517,287.00
Completion Date: June 30, 2026
Contact: Matthew Sill, P.E. / CBJ Port Engineer
Phone: (907) 586-0398Email: [email protected]
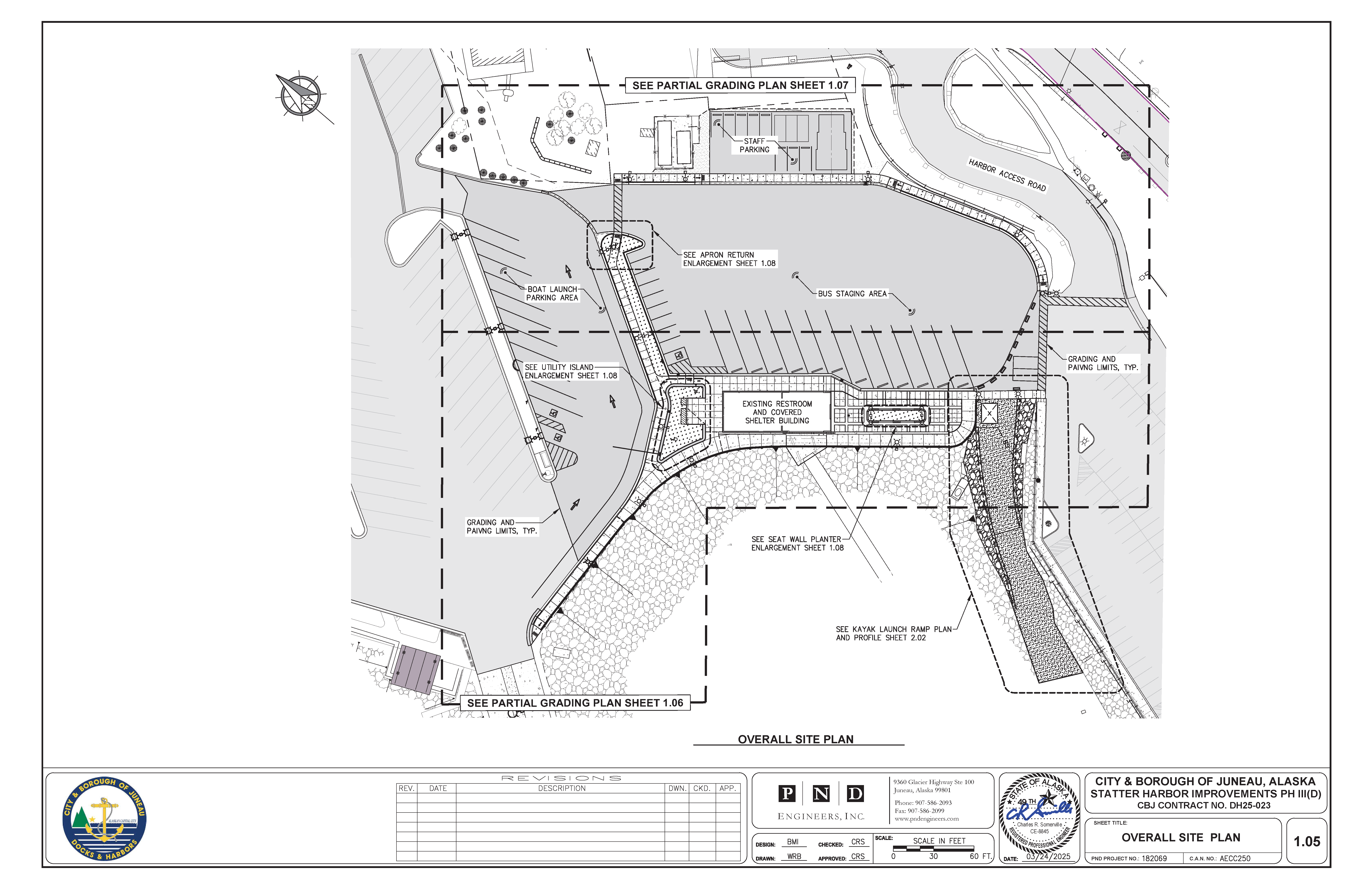
Project Overview
This Project generally includes paving the existing parking lot, curb and
gutters, sidewalks, landscaping, seawalk extension, and lighting and electrical updates and all related work.
Associated Documents
Additional Documents

